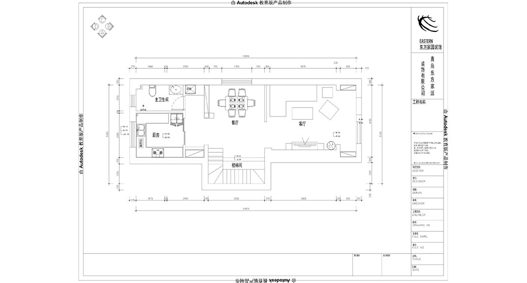
枫林小镇
所在区域:青岛 设计气概:新中式气概
月博面积
160
平方
施工时长
3
月
设计理念
计划是两个高薪阶级向导的新中式雅居气概,整体设计接纳,硬包配景墙,木饰面板,金属线条,原先名堂是关闭的自力空间,设计上买通所有空间重组,接纳律动的新中式,大胆的金属线条的运用,不失中式的美感,也有奢华的一面贯串始终,最美新中式客户整体知足度很高,期待再次相助。


